Ecohouse

fale com a gente

Projetos

home

Projetos

Na Ecohouse Construtora o projeto é ESSENCIAL , pois é nesta fase que iremos adequar toda a nossa bagagem técnica, com as necessidades de sua família.

É com a Visita Técnica de nosso Arquiteto ao terreno, que iniciaremos o projeto ... adequando sua nova casa a topografia existente, estudar qual será o melhor aproveitamento da luz Natural, dos espaços sempre funcionais e iluminados; tudo com a certeza de que: A Ecohouse construtora será responsável por TODAS AS FASES DA OBRA... 

  • Com o PROJETO DEFINIDO, iniciaremos as Aprovações e legalizações , tudo para que a obra seja executada de acordo com as legislações vigentes.
  • A Ecohouse entrega sua casa Inteiramente Pronta para Morar a PREÇO FECHADO e sem SURPRESAS!

A Ecohouse Construtora dispõe de profissionais preparados para realizar e assessorar a gestão de todos os projetos: Projeto arquitetônico personalizado, levantamento planialtimetrico, projetos de fundações e estrutura/concreto armado,  assim como os projetos de instalações hidráulicas e elétricas.

É no encerramento da fase de projetos que se inicia a etapa de “Execução das Obras”.... EM ALGUNS MESES ..... SUA FAMILIA ESTARÁ DE CASA NOVA!!

PESQUISE...ANALISE...COMPARE... E VENHA CONSTRUIR CONOSCO SUA CASA NOVA!
 

Projeto Bragança Paulista

Saiba mais

Projeto Juquitiba

Saiba mais

Projeto Itupeva Ibiaran II

Saiba mais

Projeto Sorocaba II

Saiba mais

Projeto Itupeva

Saiba mais

Projeto Jacareí - Lago Dourado

Saiba mais

Projeto Porungaba

Saiba mais

Projeto Louveira

Saiba mais

Projeto Fazenda Kurumin

Saiba mais

Projeto Edificio Residencial - Lira 145

Saiba mais

Projeto Alphaville

Saiba mais

Projeto Brooklin

Saiba mais

Projeto Capital Ville

Saiba mais

Projeto Embu das Artes

Saiba mais

Projeto Itapetininga

Saiba mais

Projeto Itatiba

Saiba mais

Projeto Itupeva

Saiba mais

Projeto Jd. Planato Paulista

Saiba mais

Projeto Jd. Prudência

Saiba mais

Projeto Perdizes

Saiba mais

Projeto Reserva Santa Rosa

Saiba mais

Projeto Sorocaba

Saiba mais

Projeto Vila Romana

Saiba mais

Projeto Ipiranga

Saiba mais

Projeto Porto São Pedor - Porto Feliz

Saiba mais

Projeto Giverny - Sorocaba

Saiba mais

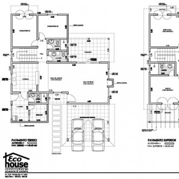
Projeto Sobrado 140m²

Saiba mais

Projeto Sobrado 161m²

Saiba mais

Projeto Sobrado 168m²

Saiba mais

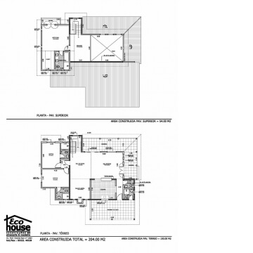
Projeto Sobrado 204m²

Saiba mais

Projeto Sobrado 218m²

Saiba mais

Projeto Sobrado 246m²

Saiba mais

Projeto Térrea 130m²

Saiba mais

Projeto Térrea 158m²

Saiba mais

Projeto Térrea 165m²

Saiba mais

Projeto Térrea 195,5m²

Saiba mais

Projeto Térrea 240m²

Saiba mais

Projeto Térrea 251m²

Saiba mais

Projeto Térrea 260m²

Saiba mais

Projeto Térrea 450m²

Saiba mais