Ecohouse

fale com a gente

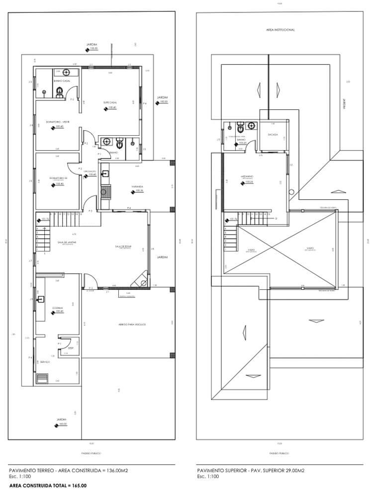
Térrea 165m²

projetos

Projetos