Ecohouse

fale com a gente

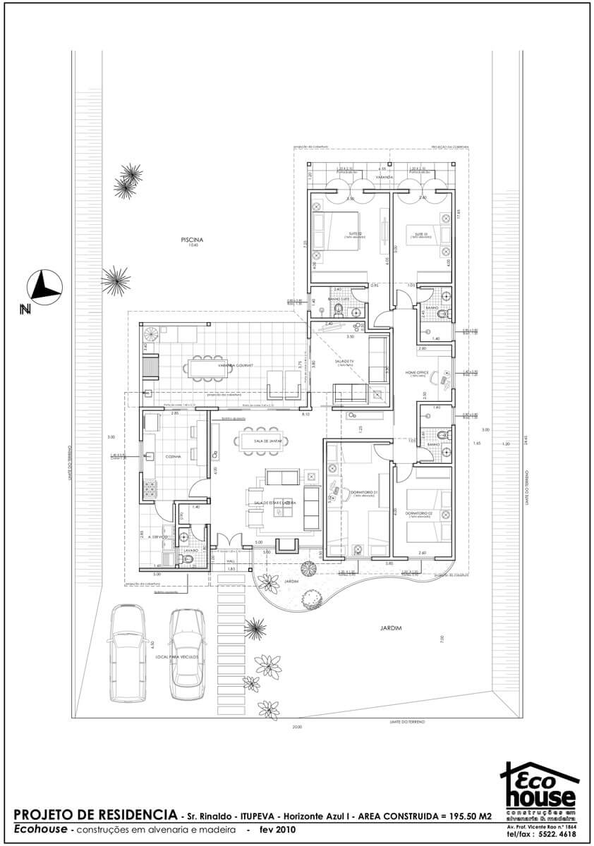
Térrea 195,5m²

projetos

Projetos