Ecohouse

fale com a gente

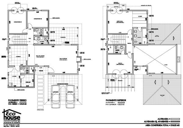
Sobrado 218m²

projetos

Projetos