Ecohouse

fale com a gente

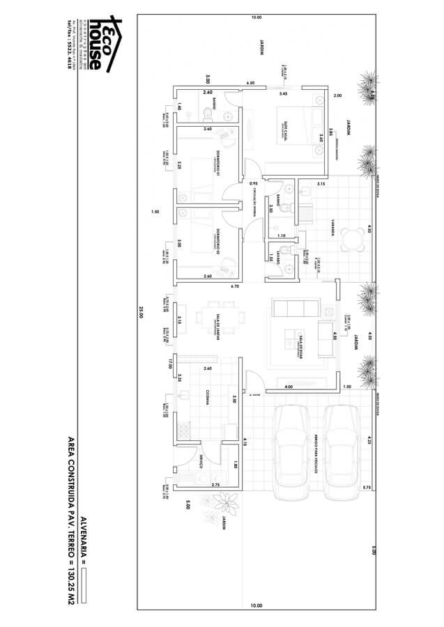
Térrea 130m²

projetos

Projetos