Ecohouse

fale com a gente

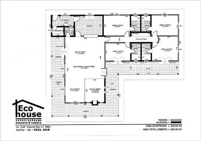
Térrea 240m²

projetos

Projetos